「浦安マンション.com」は、千葉県浦安市のマンションに特化した情報検索サイトです。地図からの検索はもちろんのこと、駅までの時間、専有面積、価格、流通件数などからの検索が出来るほか、周辺地域の利便性、またマンション内の掲示板を設け、細かく分析したい人にお勧めのサイトです!失敗しないマンション購入をサポート致します!
ホーム > 今川団地 > リフォーム施工事例
マンション相場レポート
| 2015年度売却成約価格 | 調査終了までしばらくお待ちください。 | |
| 2,500万円~2,800万円台 |
今川団地 |
| 所在地 : | 千葉県浦安市今川4-12 |
| アクセス※1: | JR京葉線「新浦安」駅 徒歩17分 |
| 専有面積 : | 74.2㎡~83.7㎡ |
| 価格帯※2 : | 2,500万円~2,800万円台 |
| 流通数※3 : | 2件 |
| ペット : | 不可 |
※1住棟が複数ある場合、所要時間と異なる場合があります ※2価格帯は2015年に販売された物件のデータです ※3流通数は2015年に取引された売買物件の数です

クリックで拡大します。
![]()
家具のように美しい真っ白なシステムキッチンはクリナップラクエラ。食洗器、浄水器、ガラストップのコンロ、人工大理石のワークトップ等、見た目だけじゃなく機能性もバツグン! |
![]()
浴室はTOTOリモデルバスルーム。アロマグリーンのアクセントパネルが爽やかな印象です。 |
![]()
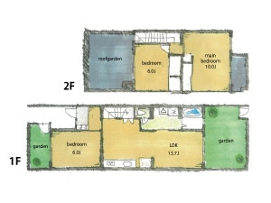
和室6帖と予備室4帖を繋げたら10帖の主寝室になりました。収納もたっぷり! |
![]()
無垢フローリングのリビングルーム。 |
![]() |
![]() |
![]() |
季節の花々が咲き乱れ、まるで公園の中に住んでいるようなテラスハウス。 今回ご紹介するY様ファミリーは、この素晴らしい住環境を変えたくないと、今まで住んでいた借家の近所の物件を購入してリフォームする事にしました。 3室あった和室はすべて洋室に変更、床にはメープルの無垢材を貼りました。クロスも建具もキッチンもすべて白で統一する事により、古さを一新する事が出来ました。 また、1Fの廊下とダイニングの間仕切り壁を撤去し、リビング入口のドア位置を変更する事により、ダイニングを広くする事に成功しました。この時、ダイニングからトイレが見えないように壁を造りました。この壁は、Y様が工事中に大工さんに頼んで角を取ってもらったそうです。こんな現場での職人さんとの打合せもリフォームの楽しさのひとつですね。 また、仲の良い姉妹も二段ベッドにサヨナラして、念願の個室を持つ事が出来ました。今までと変わらない環境で自分のお城を持ったレディ達、ますますのびのびすくすく成長される事でしょう。 今度、お逢いする日が楽しみです。
温かいぬくもりと高級感のある無垢フローリング無垢フローリングは、高級感ある家を演出してくれるのはもちろん、木本来のぬくもりがあるので、見ても触っても大変気持ちの良い素材です。 メンテナンスも比較的簡単に自分の手ですることができ、見た目も機能性も数十年に渡って維持することができます。これは一般的な合板フローリングにはないメリットです。
![]() 無垢フローリング |
担当施工会社
株式会社 アールデザイン
住所 : 千葉県浦安市入船 4-1-6
電話番号 : 047-380-8819
お問い合わせ : ご相談・お問い合わせはこちらから
230.jpg)
| 所在地: | 千葉県浦安市入船3 |
| アクセス: | JR京葉線「新浦安」駅 徒歩4分 |
| 専有面積: | 76.8㎡~92.9㎡ |
| 価格帯: | 2,900万円~3,600万円台 |
| 流通数: | 7件 |
230.jpg)
| 所在地: | 千葉県浦安市入船2 |
| アクセス: | JR京葉線「新浦安」駅 徒歩2分 |
| 専有面積: | 76.3㎡~105.0㎡ |
| 価格帯: | 2,800万円~4,000万円台 |
| 流通数: | 10件 |

| 所在地: | 千葉県浦安市今川2-2-22 |
| アクセス: | JR京葉線「新浦安」駅 徒歩13分 |
| 専有面積: | 55.2㎡~85.0㎡ |
| 価格帯: | 1,800万円台 |
| 流通数: | 1件 |
![]()

浦安市・新浦安・舞浜・人気の行徳、南行徳、妙典エリアなら明和地所!
www.meiwajisho.co.jp

浦安市・市川市エリアを中心とした地域密着型のリフォームと注文建築を行う地元工務店
健康住宅リフォーム、自然素材の家、リーズナブルで柔軟かつ多彩なリフォーム、環境に配慮した省エネ注文住宅等の提案が魅力
http://www.rdesign.co.jp/

人気の浦安・新浦安エリアなら明和地所!
浦安・新浦安エリアの賃貸物件、ワンルームからファミリー賃貸、売買物件まで、地域シェアNO.1でお部屋探し!賃貸ペット可!法人様契約等、ご要望にご対応致します。